圖紙介紹:70平三層小別墅設計圖簡歐風格,占地面積小,看上去不小,在造型設計上不拖泥帶水,施工工藝操作簡便,別墅整體設計方正,平直,不帶曲彎,線條簡潔。外觀時尚簡約,米黃色真石漆搭配天藍色屋頂,配色簡單大方。
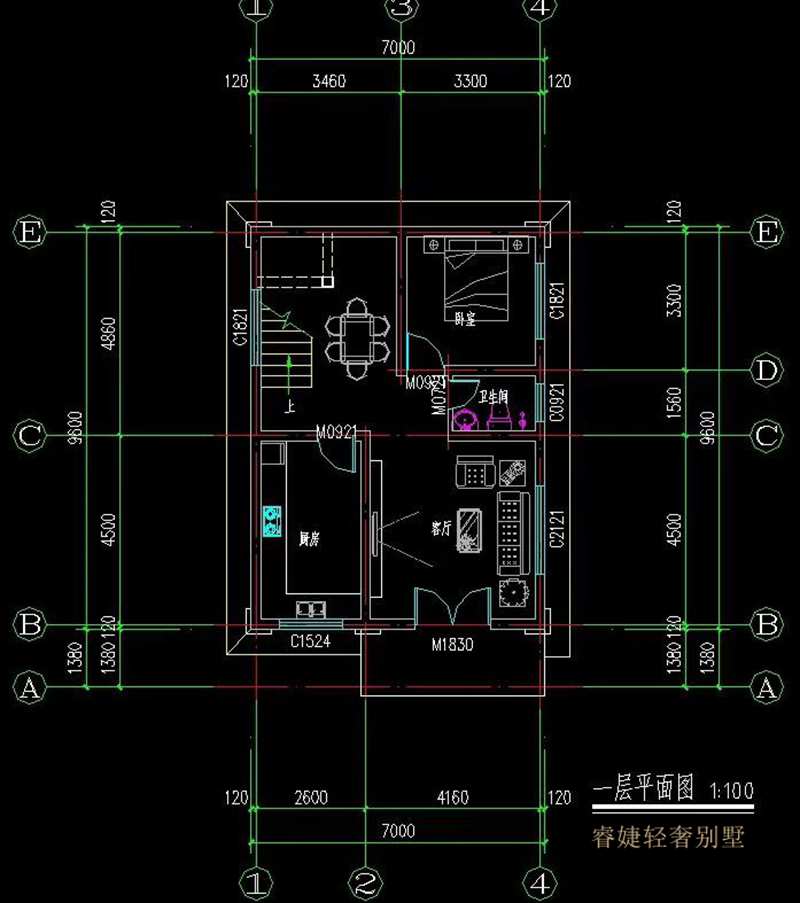
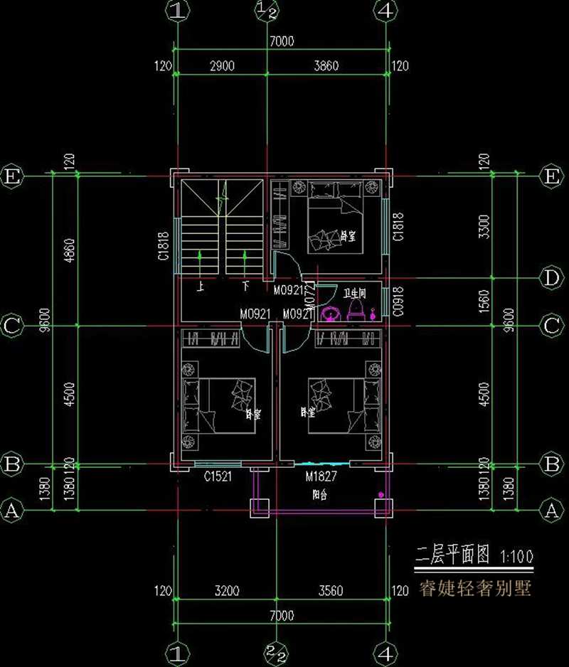
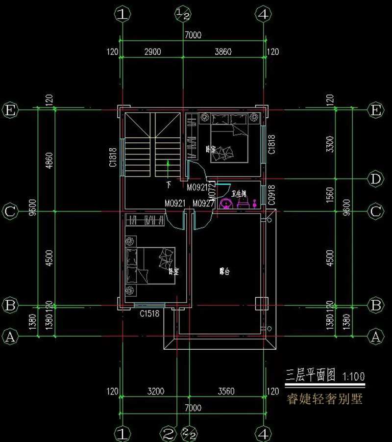
占地面積:7m*9.6m,70平方米左右;
建筑層高:三層;
建筑高度:11.8米(含屋頂);
設計功能:
一層戶型:客廳、餐廳、廚房、臥室、衛生間;
二層戶型:臥室x3、衛生間、陽臺;
三層戶型:臥室X2、衛生間、露臺;






此戶型睿婕已申請版權,請勿抄襲,違者必究。
只為睿婕客戶所享
江西漢良房屋科技有限公司 Copyright©2012-2023 All Rights Reserved 備案號:贛ICP備2023004803號-5
聲明:本站部份內容收集于互聯網,如有侵犯您的版權,請聯系1262411147@qq.com及時刪除!