圖紙介紹:漂亮的三層新中式別墅,配色溫馨淡雅有層次,祥云圖案精致恰當。精致的圍廊邊框,加上燈光的襯托,整個別墅更顯得溫暖宜居。露臺可打造空中花園,觀景聊天,舒適極了
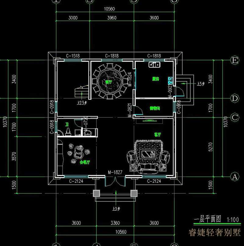
占地面積:10.56m*8.87m,100平方米左右;
建筑層高:三層;
建筑高度:11.9米(含屋頂);
設計功能:
一層戶型:會客廳、客廳、餐廳、廚房、衛生間、儲物間;
二層戶型:書房、主臥(帶衛生間、衣帽間、陽臺)、臥室(帶衛生間)x2;
三層戶型:健身房、臥室(帶衛生間)x2、小廳、露臺;






此戶型睿婕已申請版權,請勿抄襲,違者必究。
只為睿婕客戶所享
江西漢良房屋科技有限公司 Copyright©2012-2023 All Rights Reserved 備案號:贛ICP備2023004803號-5
聲明:本站部份內容收集于互聯網,如有侵犯您的版權,請聯系1262411147@qq.com及時刪除!