圖紙介紹:簡歐風格大氣美觀,適合自建!經典的歐式外觀,米黃色真石漆與棕色真石漆搭配蘭色坡屋頂,加上層層錯落陽臺及露臺,生出一種參差美感。立面造型更加連貫,設計感十足。踏步入戶,迎面布置隔斷墻設玄關,既能避免入戶見餐廳,還能照顧到鄉(xiāng)村居住的傳統(tǒng)需求。挑高設計的客廳大氣敞亮,陽光透過窗最大限度的鋪灑,溫暖舒適。二層起居室給家中成員提供了一個享受家庭生活的溫馨空間,臨靠陽臺,采光好又通透,還可在陽臺觀賞田野風光。三層室外有大露臺,家人吃完飯后可以到這里來坐一會,吹吹鄉(xiāng)間的山風,看看滿天星光。
占地面積:10.91m*10.58m,116平方米左右;
建筑層高:三層;
建筑高度:12.4米(含屋頂);
設計功能:
一層戶型:玄關、客廳、廚房、餐廳、臥室、衛(wèi)生間、雜物間;
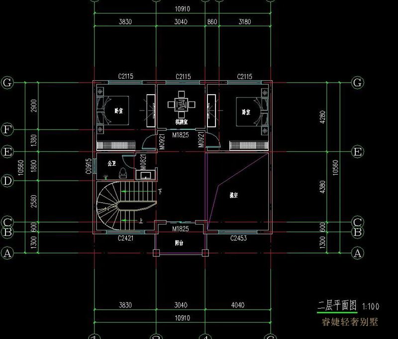
二層戶型:客廳上空、起居室、衛(wèi)生間、臥室x2、棋牌室、陽臺;
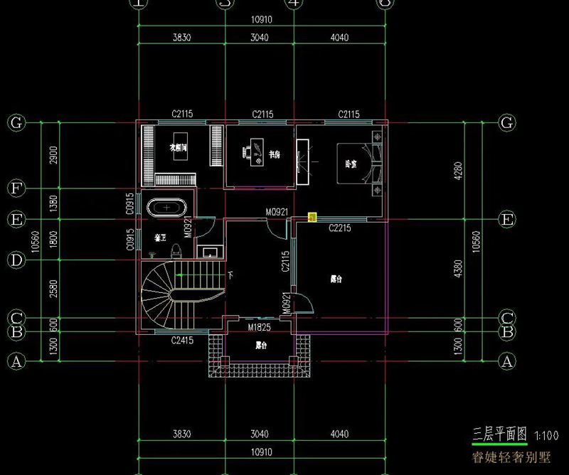
三層戶型:起居室、臥室(帶衛(wèi)生間、衣帽間、書房)、露臺;






此戶型睿婕已申請版權,請勿抄襲,違者必究。
只為睿婕客戶所享
江西漢良房屋科技有限公司 Copyright©2012-2023 All Rights Reserved 備案號:贛ICP備2023004803號-5
聲明:本站部份內容收集于互聯(lián)網(wǎng),如有侵犯您的版權,請聯(lián)系1262411147@qq.com及時刪除!