深圳睿婕鋼結構建筑科技有限公司生產的輕鋼房屋有抗震、抗風、經久耐用、隔音效果好、保溫、隔熱性能優、施工周期短、造型美觀大方、居住舒適等產品優勢,可根據客戶需求提供一套專業的設計、安裝、配套、維護等。
現在農村生活越來越好,對于建房,在外觀和戶型選擇上更加講究,有的朋友喜歡從外觀造型就盡顯豪華大氣,而有的則注重內部格局的簡約舒適。
今天給大家推薦的這款戶型為2層半獨棟別墅,可設有半地下層,占地面積246.97平米。外型氣派,而且在造價、裝修上都勝人一籌功。

功能分區合理,房間尺度設計適宜,采光通風良好,很適合農村建造。
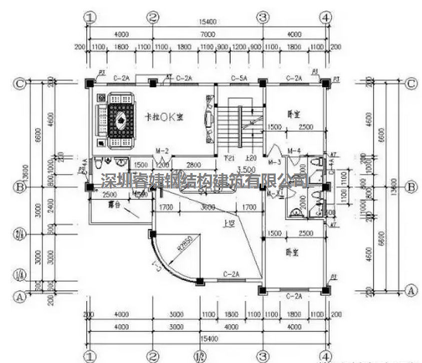
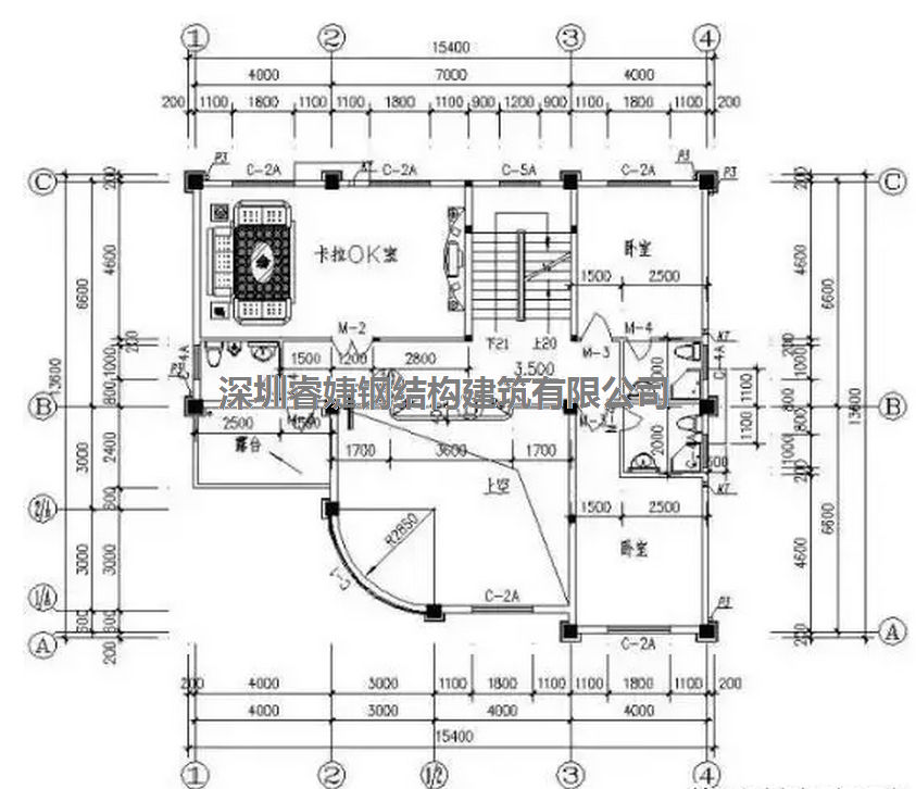
基本信息
開間:15.4米
進深:13.6米
占地面積:246.97平方米
建筑面積:682.4平方米
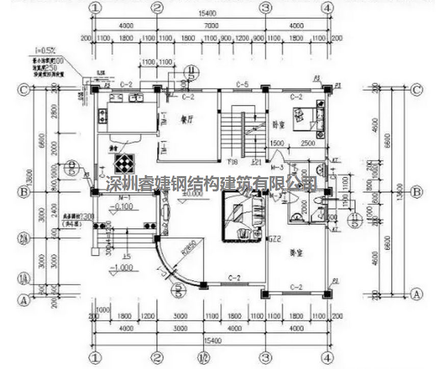
平面布局
一層:設有工人房、洗衣房、晾衣間、4間臥室、5個衛生間、健身房、家庭廳、桑拿淋浴室、雙車庫、5個衣帽間、設備用房、家庭影院;
二層:設有客廳、廚房、早餐廳、正餐廳、書房、衛生間3間、臥室2間、會客廳、2間衣帽間
三層:設有主臥室、2間臥室、3個衛生間、活動室、起居室、4個衣帽間和一個梳妝臺
此內容來源于網絡,如涉及版權問題請與我們聯系。